Número de artículo :
M20(1+4)Pedido (cantidad mínima de pedido) :
1Origen del producto :
Nanjing, Jiangsu Province, ChinaPlazo de entrega :
30thPeso :
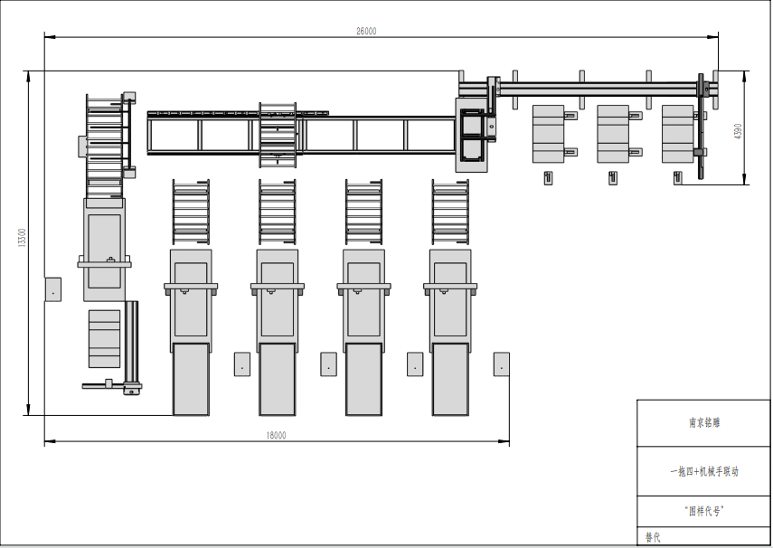
11000KGLínea de producción de muebles de panel M20(1+4) e introducción detallada

El proceso de la Línea de producción de muebles de panel M20(1+4) El proceso es el siguiente: El material se carga en la plataforma hidráulica, se carga automáticamente en la máquina de procesamiento inverso, se realiza el marcado láser, se taladran los orificios para las bisagras, se realizan perforaciones, ranuras de enderezamiento y se procesa la parte posterior de la puerta de vidrio, se transfiere a la máquina de volteo, se transfiere automáticamente mediante el carro inteligente Mingdiao al centro de procesamiento con forma de puerta, se procesa y corta la forma de la puerta y, después del procesamiento, se empuja a la plataforma de descarga y se carga simultáneamente.
Toda la chapa metálica se distribuye a los distintos centros de procesamiento mediante carros inteligentes Mingdiao. En comparación con los sistemas de distribución por cinta transportadora actualmente en el mercado, sus ventajas son las siguientes:
(1) Estructura más simple y ciclo de instalación y depuración más corto
(2) La posición de alimentación de la máquina se controla directamente mediante un servomotor que sigue coordenadas mecánicas fijas, lo que facilita el ajuste.
(3) Se utilizan menos sensores e interruptores de límite mecánicos, lo que resulta en circuitos de control más simples y un mantenimiento más fácil posteriormente.
(4) Más estables y eficientes que los transportadores de rodillos del mercado.
---

El proceso de producción automatizado de la Línea de producción de muebles de panel M20(1+4) Incluye principalmente los siguientes pasos:
① Alimentación y etiquetado automáticos: La línea de producción comienza con la alimentación automática. Una vez colocados los paneles, el equipo aplica automáticamente las etiquetas (o marcas láser) y perfora agujeros en la parte posterior de los paneles de las puertas.
② Volteo y transporte automáticos: Después del procesamiento de la parte posterior, la línea de producción utiliza una máquina volteadora automática para voltear toda la placa y distribuirla y transportarla a la máquina responsable del procesamiento de la parte frontal.
Procesamiento y corte de la parte frontal: En el centro de procesamiento de la parte frontal, el equipo completa el moldeado de la parte frontal de los paneles de la puerta y realiza el corte.
④ Descarga automática: Una vez finalizados todos los procesos, la máquina empuja automáticamente los materiales procesados a la mesa de descarga, donde posteriormente son clasificados por personas o brazos robóticos.
Parámetro técnico
| Potencia del husillo | 9,0 kW*1 |
| Velocidad del husillo | 0-24000 rpm |
| Velocidad de trabajo | 12-25 m/min |
| Dimensiones de procesamiento | 1220 x 2440 x 250 mm |
| Voltaje | 380V/50HZ |
| peso bruto | 11000 KG |
| Potencia total | Aproximadamente 5,0 kW |
| Instrucciones de grabado | Código G, eng, uoo, NC, Tap |
| Mango/abrazadera de cuchillo | Puede sujetar diámetros de 3,175 a 12,7 m. |
imágenes de detalle
Dejar un mensaje
Escanea y envíalo a WeChat/WhatsApp. :