solución

Línea de procesamiento frontal y posterior para fresadora CNC M20
Esta línea de producción puede realizar procesos como perforación de orificios para bisagras, ranurado y modelado en la parte posterior de los paneles de las puertas. El proceso general es el siguiente: alimentación del material a la plataforma hidráulica, alimentación automática a la máquina de procesamiento, perforación de orificios para bisagras, perforación de orificios, ranurado enderezador y procesamiento de la parte posterior de la puerta de vidrio, transferencia a la máquina volteadora para voltear la puerta, transferencia de regreso al centro de procesamiento con forma de puerta, procesamiento y corte de la forma de la puerta en la parte frontal, empuje del producto terminado a la plataforma de descarga mientras se alimenta simultáneamente el material, colocación manual de etiquetas y recolección del material.
-

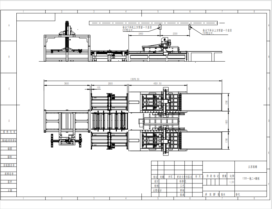
Pórtico M12 para la alimentación de una línea de producción de muebles de 1 a 2
La máquina de grabado CNC de dos a uno montada sobre pórtico es un sistema automatizado que emplea una estructura de pórtico, capaz de gestionar simultáneamente la manipulación de materiales y la carga/descarga para dos máquinas herramienta CNC.
El flujo general de la línea de producción es el siguiente: Carga del pórtico – Máquina de etiquetado – Etiquetado – Asignación automática a las máquinas de procesamiento mediante el sistema de distribución inteligente basado en armarios – Preparación de la máquina – Corte – Procesamiento completado y empujado a la plataforma de descarga – Recuperación mediante brazo robótico.
La estructura del pórtico posee una gran rigidez y estabilidad. Combinado con un sistema de servocontrol, el equipo funciona sin problemas y con una baja tasa de fallos, satisfaciendo las necesidades de producción de las empresas para un funcionamiento continuo a largo plazo. Gracias al accionamiento mediante servomotor y guías lineales, ofrece una alta velocidad de operación y una gran precisión de posicionamiento (repetibilidad de hasta ±0,5 mm a ±1 mm), lo que reduce significativamente el tiempo de espera de la máquina herramienta.
--

Pórtico MD-8AL para la alimentación de una línea de producción de muebles de 1 a 2 niveles + paletización robótica.
El proceso general de la línea de producción es el siguiente: Carga del pórtico --- Máquina de etiquetado --- Etiquetado --- Asignación automática a las mesas de espera izquierda y derecha mediante el sistema de distribución inteligente tipo armario --- Carga de la máquina --- Ensamblaje de la máquina --- Corte --- Procesado y empujado a la plataforma de descarga --- Paletizado mediante brazo robótico
Todo el proceso, desde la carga de la materia prima hasta el paletizado del producto terminado, no requiere intervención manual, solo un pequeño número de personal para supervisión y asistencia, lo que supone un ahorro significativo en costes laborales y resuelve el problema de la escasez de mano de obra.
Centro de mecanizado de uno a dos: Un sistema de carga tipo pórtico da servicio a dos máquinas de grabado CNC simultáneamente. Mientras una máquina está trabajando, el pórtico ya está cargando la otra, lo que reduce considerablemente el tiempo de espera.
--

Sistema operativo de datos del sitio web
Desarrollado a partir de la API de Google, el sistema de big data integra todos los datos del sitio web (listado, peso, posicionamiento, tráfico, consultas), de modo que cada sitio web tiene su propia base de datos de palabras clave y un sistema de monitorización semanal de palabras clave.
--

Conector inteligente M12 para cortar tres armarios de muebles
El proceso general es el siguiente: el material se carga en la plataforma hidráulica, se aplica el etiquetado, el sistema de distribución inteligente asigna automáticamente el material a la máquina de procesamiento, la máquina procesa el material, se corta y, después del procesamiento, el material se empuja a la plataforma de descarga para esperar a ser asignado por el sistema de distribución inteligente, logrando así un procesamiento continuo e ininterrumpido del material en láminas.
Toda la línea de producción está completamente automatizada, requiriendo un solo operario para la carga y el monitoreo general, reemplazando por completo a los 2 o 3 trabajadores de clasificación y manipulación necesarios en el modelo tradicional. Esto no solo ahorra significativamente en costos laborales, sino que también libera a los trabajadores de tareas físicas repetitivas y de alta intensidad, reduciendo los riesgos para la salud laboral y las dificultades de gestión.
--

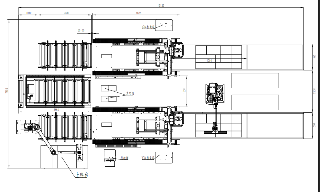
M20 Panel de puerta moldeado de uno a cuatro con conexión inteligente
La línea de producción es menos propensa a errores y requiere una mínima intervención humana. Mediante la asignación precisa de las tareas de procesamiento por parte de un controlador central, se garantizan detalles de procesamiento uniformes y estandarizados, como la forma y la posición de los orificios en ambos lados del panel de la puerta, lo que estabiliza la calidad del producto.
El proceso general es el siguiente: El material se introduce en la plataforma hidráulica, se introduce automáticamente en la máquina de procesamiento inverso, se realiza el marcado láser, se taladran los orificios para las bisagras, se realizan perforaciones, ranuras de enderezamiento y se procesa la parte posterior de la puerta de vidrio, se transfiere a la máquina de volteo, se transfiere automáticamente mediante el carro inteligente Mingdiao al centro de procesamiento de la forma de la puerta, se procesa y corta la forma de la puerta, y el producto terminado se empuja a la plataforma de descarga y se carga simultáneamente.
Todo el proceso está automatizado, sin necesidad de intervención humana, lo que ofrece mayor precisión y eficiencia, con una producción diaria de 250 a 500 metros cuadrados. (El diseño específico depende de la complejidad del panel de la puerta).
--
Máquina de volteo 1+1

Carga de grúa pórtico 1+2

Máquina de volteo 1+2
duotouji
Máquina de alimentación y volteo de doble contenedor
1+2
Una a tres comidas

Alimentación de uno a cuatro

Dejar un mensaje
Escanea y envíalo a WeChat/WhatsApp. :